Lepšie vedieť pre hlavnú jednotku kruhového kruhu naplneného SF6

2025-03-19 - Nechajte mi správu

1. Hlavné vlastnosti rozvádzača izolovaného plynu SF6:


Spivník izolovaný plyn  Prijíma SF6 ako hlavné izolačné médium na hlavnej jednotke kruhu od 10 kV až 35 kV. Pri výstavbe urbanizácie má hlavná jednotka s plným plynom SF6 s plným plynom s názvom významné výhody kompaktného a modulárneho dizajnu. Všeobecne sa prijíma v mestskej energetickej sieti, železničnom tranzite, novom energetickom priemysle a priemyselných podnikoch.


Tabuľka obsahu

1. MainFeatures ofSF6 izolovaného rozvádzača izolovaných plynu

1.1 Modulárny návrh rozvádzacieho rozvádzača izolovaných plynu SF6

1.2 Kompaktný návrh rozvádzacieho rozvádzača izolovaných plynu SF6

2

2.1 SF6 Schéma štruktúry izolovaného plynu

2.2 Vonkajšie rozmery hlavnej jednotky SF6 kruhu

2.3 Štandardné moduly roztoku a rozšírenia

3 Parameter rozvádzača izolovaného plynu SF6

 

1.1 Modulárny návrh rozvádzacieho rozvádzača izolovaných plynu SF6


Tenhlavná jednotka SF6  Hlavne má C (panel káblového spínača), V (panel vákuového ističa), D (panel s priamym káblom), DE (priame pripojenie kábla s uzemňovacím panelom), F (panel odpojenia spínačov) a M (merací panel).

V skutočných prípadoch jednotka C a V ponúka riadenie a ochranu prikladania a výstupného napájacieho vedenia kábla. Okrem funkcie prevádzky zaťaženia má jednotka V pri odrezaní skratového prúdu a prúdu zaťaženia viac funkcie. Jednotka M vybaví meranie CT a PT a energetický meter. Normálne má šírku 800 mm, ktorá je rovnaká ako aKyn28-12. Jednotka D a DE sa používa na zvýšenie výšky kábla zo zeme po hornú časť hlavnej jednotky kruhu SF6. Okrem toho sa jednotka F používa aj pri vkladaní a ochrane výstupu, ale používatelia terminálov uprednostňujú prijatých jednotky v jednotke F, pretože ovládacie zariadenie je zložitejšie.


1.2 Kompaktný návrh rozvádzacieho rozvádzača izolovaných plynu SF6


Normálne je rozmer jednotky C alebo V W*H*D = 371*1800*750 (mm), ale vstupný alebo výstupný panel Kyn28-12 je W*H*D = 800*2300*1500 (mm). Niet pochýb o tom, že hlavná jednotka SF6 Ring má konkurencieschopnejšie logistiku a náklady na pôdu. Okrem toho má rozvádzacia rozvádzacia rozvádzačka SF6 nižšie náklady na materiál ako Kyn28-12 ako kompaktné navrhovanie.



2. Štrukturálne sudca s rozvádzačom izolovaným plynom SF6


   V rozvádzacom izolovanom rozvádzači má hlavne plynovú nádrž SF6, hlavný spínač a istič, systém zlyhanov, riadenie prevodového stupňa a sekundárneho riadenia a ochranného systému.

   Plynková nádrž SF6 prijíma 201 alebo 304 z nehrdzavejúcej ocele, z ktorých ročná miera úniku je nižšia ako 0,1%, ktorá je navrhnutá ako úplne utesnená a izolovaná. Zabezpečuje službu bez údržby viac ako 30 rokov.

   Je podobný ako avzduchom izolovaný rozvádzače  Že hlavným spínačom a ističom vo vstupnom a výstupnom paneli je prepínač uzemnenia, prepínač odpojenia, istič prepínača načítania a vákuový istič na riadenie a ochranu napájacích systémov.

   V jednej bežnej nádrži SF6 by mohla integrovať 7 modulárnych jednotiek na najviac 10 kV napájacieho mriežkového systému. V opačnom prípade je pre predĺženia potrebný pripojený kábel a káblová zátka. V jednej spoločnej nádrži sú však modulárne jednotky spojené zlyhanom medi.

   Systém sekundárneho riadenia a ochrany má funkciu na monitorovanie hodnotového napätia a prúdu na ochranu hlavnej jednotky SF6 pred zlyhaním systému. Medzitým podporuje aj automatizáciu, diaľkové ovládanie, získavanie údajov a prístup k systému SCADA. Okrem toho hlavná jednotka Ring SF6 poskytuje tiež pomocný zdroj napájania na zabezpečenie normálnej prevádzky riadenia a prenosu signálu.


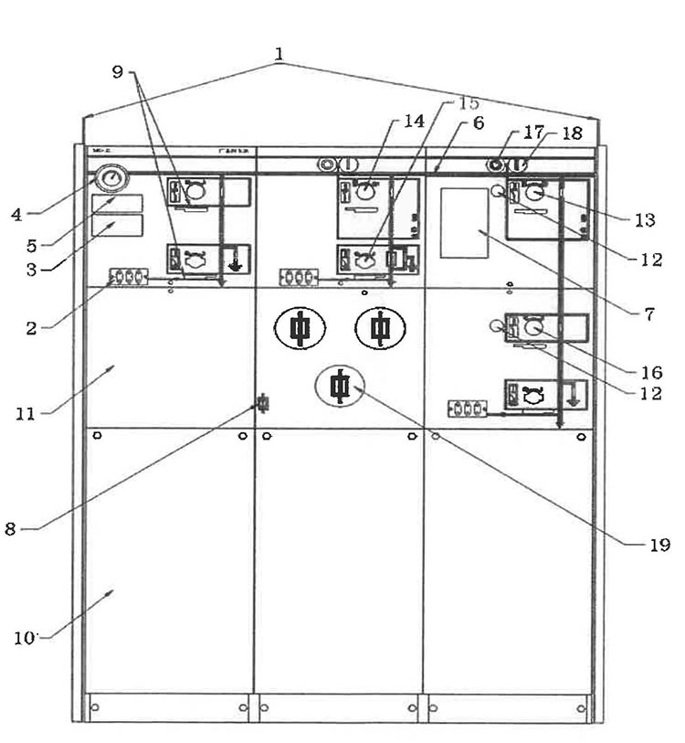
2,1 SF6 Izolovaný plynový čarodejnícky čarodejnica D IAGRAM:


 

 


1. Zdvíhací krúžok

2. Živý ukazovateľ

3.Vákateľný indikátor poruchy

4. Merač tlaku plynu

5. Doska so sériovým číslom

6. Jedna čiara kresba

7. Self-poháňané relé

8. Indikátor fúkanej poistky

9.Padlock

10. Káblová miestnosť

11. Inštalačná miestnosť RTU211

12. skrinka

13. Prevádzka obvodu ističa

14. Prevádzkový otvor na záťažový prepínač

15. Prevádzkový otvor na uzemnenie

16. Prevádzkový otvor izolačného prepínača

17. Tlačidlo Trip

18. zatvorené tlačidlo

19. Poistková priehradka

 

 


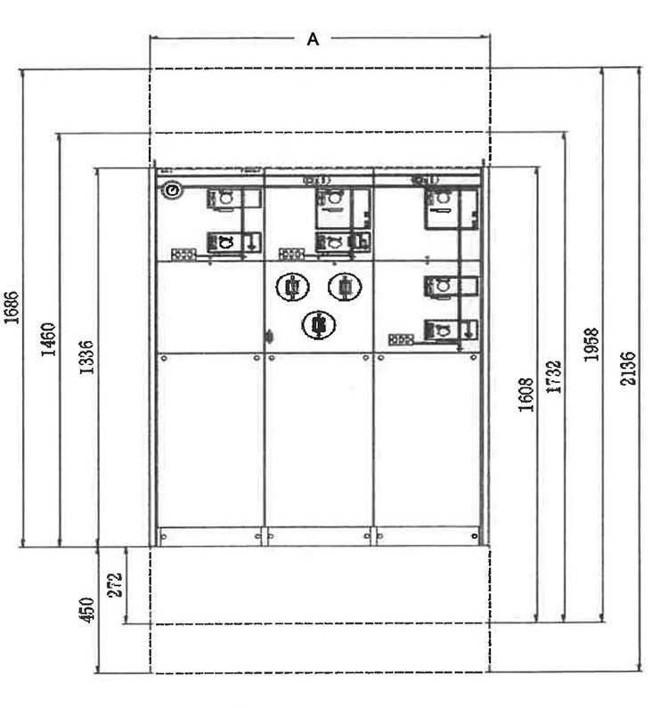
2.2 Vonkajšie rozmery hlavnej jednotky kruhu SF6 :


 

Jednotka

A

1 bunka

371

2 bunky

696

3 bunky

1021

4 bunky

1346

5 bunky

1671

6 bunka

1996

 

2.3 Štandardná rozlíšenie a e Xtension m Oules :


 


C: Spínač kábla  

F: Spínač kábla s poistkou

DE: Director Cable Connection so uzemňovaním    

V: Vákuový istič

D: Režisér káblového pripojenia  

M: Modul merania (izolácia vzduchu)

 

3. Parameter rozvádzača izolovaných plynu SF6


1. Tlak plynu SF6:

Relatívny tlak pri 20 ° C je 0,03 mPa

2. Ročná miera úniku plynu:

≤0,01%

3. Úroveň ochrany:

IP67

4. Normálne podmienky prevádzkového prostredia:

-35 ℃ až+40 ℃

5. Maximálna priemerná relatívna vlhkosť (pri 25 ° C):

Denná priemerná hodnota ≤ 95%;

Mesačná priemerná hodnota ≤ 90%

6. Nadmorská výška:

≤ 1 000 m

7. Intenzita zemetrasenia:

Úroveň

 

 

Odoslať dopyt

X
Súbory cookie používame, aby sme vám poskytli lepší zážitok z prehliadania, analyzovali návštevnosť stránok a prispôsobili obsah. Používaním tejto stránky súhlasíte s naším používaním cookies. Zásady ochrany osobných údajov
Odmietnuť Prijať